伝統的な中国の街の風景を残す、青村老街というまちにある書店「中版書房」。2020年に竣工したというこの建物を手がけたのは、上海を拠点とする設計スタジオ・COLORFULL 昱景设计です。コンセプトやファサードの特徴について、同社の林佳史さんにお話を聞きました。
■背景・コンセプト
本計画地の青村老街は上海の南方、奉献地域にある水郷の町として、伝統的な中国の街の風景を残す地域です。1692年に建てられた南紅橋や、清王朝時代に建てられた龍翔橋など、古い石橋や水路と共に暮らす生活風景が印象的で、2004年に上海の歴史的景観保存地域として指定されました。
本計画はその景観保存地域に隣接して計画されることから、老街をPRする場と書店の機能を一体で設計することが求められました。

「中版書房」は、中国出版集団という中国の大手出版社が運営する書店です。そのため一般的な書店と異なり、貴重な書籍の展示や作家たちが地域の読者と交流するためのサロンスペースなどの機能が求められました。
それに加え、地域活性化の役割として人々の交流の場や歴史展示コーナー、さらに地元の子どもたちが学習するスペースなど、書店と地域コミュニティセンターが合わさった集会所のような場になるよう計画を進めていきました。
■課題となった点、手法、特徴
書店は2層で構成され、1階と2階にそれぞれ異なる2つの機能をもたせました。1階は、サロンスペースやカフェ、書籍、歴史展示など地域に開かれた機能をおもに配置しています。そのため、青村老街の空間体験をもとに本棚の配置を雁行させ、入り組んだ路地体験を演出したり、天井に波状加工された鏡面ステンレス板を用い、水面の反射を再現するなど、青村老街の歩行体験を想起させるような空間としました。
また、空間の中心にある柱をLEDディスプレイで覆い、老街での生活風景や水の動きを映し出すことを考えました。天井のステンレスに映像が反射して、映像の雰囲気が空間全体に広がります。


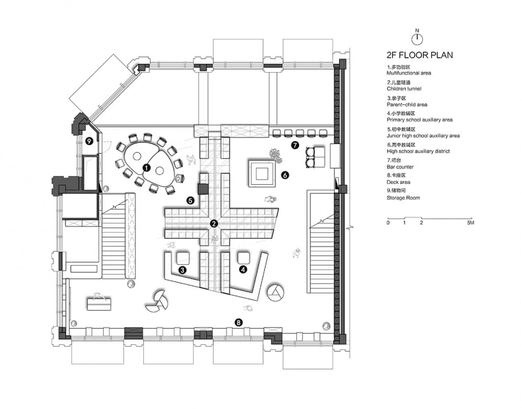
2階は地域の子どもたちの学習スペースや、親子が一緒に読書したり遊べるスペースを配置しました。一般的に子どもは学年によって興味や遊ぶ対象が変わるため、空間を間仕切る必要があると考えました。そこで、壁を立てて完全に間仕切るのではなく、中心に十字形の低い本棚を設置し、平面を4つのゾーンに分けることで、緩やかに繋がりながらもそれぞれ独立した空間性をもたせることができました。


さらに、その十字型の本棚の中に細いトンネル状の通路を通して、各ゾーンを行き来できるようにすることで、子どもたちが公園の遊具で遊ぶような体験を書店の中でも再現できないかと考えました。

超デジタル化社会にある中国では、情報への接し方が日々多様化しています。それに伴って書店の役割も大きく変化しました。書籍を出版する役割だった出版社が書店を出店することは、読者と直接繋がることになります。需要側と供給側の距離が限りなく近くなっている現代において、作り手自身がその商品から派生する新たな体験価値を創出しなければいけません。
これからの書店は利用者の変化に対応しながら、その地域の特色を生かし、そこでしかできない活動や地域に根づいた情報の発信点になる必要があるのではないかと考えています。
| 所在地 | Block 7, 3111, Nanfeng Road, Fengxian District, Shanghai,China |
|---|---|
| 設計 | Sunny Zhao,Ryo Ono,Yutaka Kawai,Louis Xie,Honey Zhuang,Zhang Fangxing,Hao Zhang/COLORFULL 昱景设计 |
| 構造 | RC |
| 延床面積 | 550m2 |
| 竣工日 | 2020年9月 |
| 撮影 | RUNTU ARCH・Aaron |




